Olika delar inom DALI Visualizer



Tillbaka


De olika delarna inom TREBOR DALI Visualizer


Övervakning
Övervakning är en central del i automatiserad belysning. Alla komponenter i en TDV-anläggning övervakas och kan styras manuellt. Det gör det möjligt att analysera och övervaka systemet i realtid, samt att aktivera larm vid eventuella fel. Alla grupper och scener kan manuellt styras och det är även möjligt att aktivera programmering i regelmotorn manuellt. På detta sätt kan du enkelt justera belysningen i dina lokaler efter dina behov.


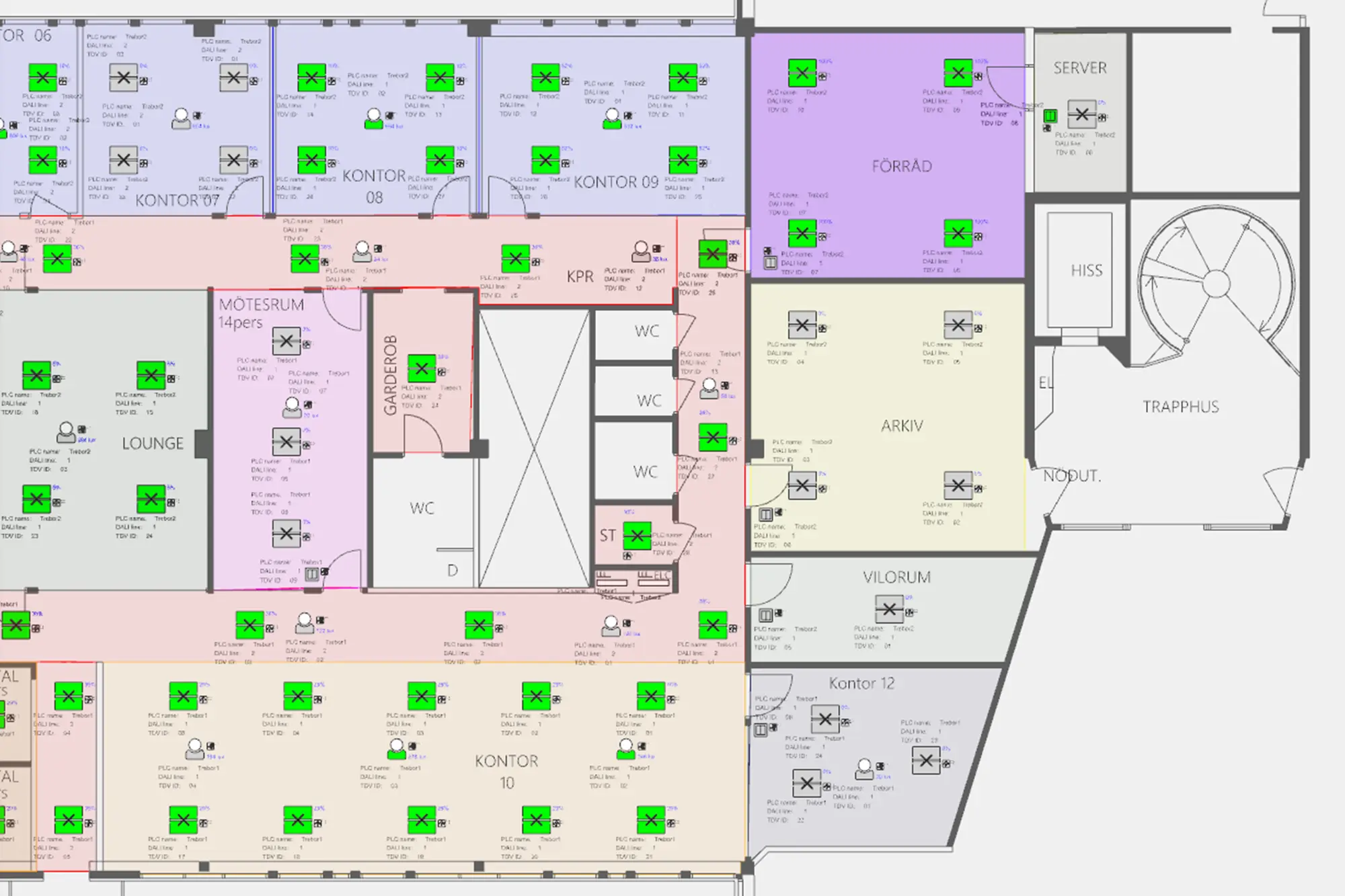
Grafik
Grafik är också en viktig del i automatiserad belysning. Alla komponenter i anläggningen visas på vektoriserade planritningar, vilket gör det lätt att få en överblick över systemet. Om flera våningsplan eller fastigheter ansluts struktureras dessa efter städer, anläggning och våningsplan. Det gör det enkelt att hitta just den komponent man vill justera. Om en komponent saknas vid driftsättning kan den enkelt adderas, och det är lika enkelt att justera komponenter. Det gör systemet mycket flexibelt och anpassningsbart efter dina behov.


Underlag
För att TDV ska kunna göra varje komponent unik krävs viss data för varje symbol på planritningarna.
"PLC Name = Gatewaynamn",
"DALI Line = Linjens nummer (1-10),
"TDV ID = DALI ID".
Exportfiler från MagiCAD och REVIT kan med fördel användas och med rätt uppsatta CAD-ritningar autogenereras hela systemet på några minuter. CAD-ritningar finns ofta att tillgå från projektören som tillhandahåller den informationen, annars används det inbyggda ritverktyget.



Larmövervakning
Larmövervakning är en viktig del i att hålla koll på systemet. Genom att övervaka alla komponenter i en larmlista, kan du enkelt spåra alla larm och se var larmet kommer ifrån på planritningen. Vill du se mer detaljerad information eller få en bättre överblick, kan du enkelt skala in och ut från larmets punkt och ett enkelt klick på planritningen ger dig en mängd information. Larmlistan innehåller också historik och statistik för alla larmhändelser, vilket gör det enkelt att analysera och identifiera eventuella problem.


Loggning/Historik
Loggning och historikhantering är en annan viktig funktion som används för att effektivisera användningen av energi. DALI2 är händelsestyrt, vilket innebär att gateways skickar ut händelsesignaler och förväntar sig att de utförs. Komponenter i DALI2 skickar ut händelser på DALI-bussen, t.ex. närvaroindikering eller att en lampa är tänd. TDV fångar upp händelser och sparar dessa i en databas (SQL). Alla signaler och händelser loggas, och dessa kan användas för att analysera och optimera användningen av energi.


Funktionsområden
Funktionsområden underlättar arbetet i TDV genom att intuitivt färglägga olika funktionsområden baserat på grupperingar eller scener. Det gör arbetet mycket mer lättöverskådligt och lättare att snabbt hitta det du söker. Genom att ha länkar till funktionsdokument direkt i gränssnittet blir det enklare att hitta och använda de funktioner som du behöver. Detta gör det möjligt att snabbt och enkelt utföra olika åtgärder inom systemet.



Kopplingsscheman
Via menyn i gränssnittet kan alla anslutningar tändas upp. Kopplingsschemats del i en automations- eller belysningsanläggning beskriver hur allt ska anslutas. Med en lättförståelig meny kan projektören enkelt visualisera anslutningarna och se att allt fungerar korrekt, kopplingarna utförs av projektören.


Valideringsrapport
Valideringsrapporter är en viktig del av att testa anläggningen för att upptäcka eventuella problem eller fel. Allt dokumenteras i TDV, och rapporten används sedan vid slutbesiktning.


Programmering
All programmering förutom blinkning, grupper och scener utförs i regelmotorn. Programmering kan även göras utan att vara ansluten till respektive gateway, den kan utföras vart som helst och laddas upp vid tillgång till anläggningen. Blinkning, grupper och scener utförs i den inbyggda DALI-konfiguratorn.


Optimering
Optimering är en process som gör det möjligt att spåra och ändra funktioner efter behov. TDV klienten är användbar för att snabbt identifiera problem och förbättra anläggningen.


Webb-klienter
Webb-klienter är ett bra verktyg för att visa status och kontrollera delar av en fastighet. Antalet webb-klienter som kan sättas upp är obegränsat, vilket underlättar när det handlar om hantering och övervakning av stora anläggningar. Att ha en välstrukturerad metod för att utföra kopplingsscheman, valideringsrapporter, programmering och optimering är avgörande för att säkerställa en fungerande automations- och belysningsanläggning.



Energioptimering
Energioptimering är en viktig faktor ur ett hållbarhetsperspektiv när man installerar en fastighetsautomation. Med D4i-standarden blir det enkelt att följa upp energiförbrukning och se vad effektiviseringsåtgärder har för effekt. Detta gör det lättare att identifiera och åtgärda eventuell onödig energiförbrukning.


IT-säkerhet och nätverk
Säkerheten är också en viktig faktor att ha i åtanke. Alla gateways som är anslutna till fastighetens lokala nätverk kommunicerar med TDV-servern. Vid anslutning härdas alla anslutna gateways automatiskt och kommunikationen mellan gateway och TDV-servern är alltid krypterad. Detta gör det svårt för obehöriga att komma åt informationen och garanterar säkerheten för fastigheten.


Kalibrering av lux-sensorer
Välkalibrerade lux-sensorer är ett måste för att maximera nytta kontra energiåtgång gällande belysning, utan sensorerna "vet" inte systemet hur myckety ljus som behövs för respektive yta. Det är viktigt att ytan är möblerad som den ska och att mätningen görs i de delar av rummet som ska användas. Ljuset påverkas av underlag, färger och möbler som alla reflekterar ljuset olika. Kompensationsfaktorer bör undvikas då de ofta medför felaktiga värden och försvårar uppföljning och avvikande reglering.


Dokumentation
Alla manualer och dokument relaterade till funktioner och användning i TDV finns några klick bort i systemet, så att du som användare alltid har tillgång till all dokumentation.


Utbyte av komponenter
För att underlätta byte av komponenter finns en rad inbyggda funktioner som markerar komponenter som ska bytas ut. När en ny komponent är monterad programmeras den enkelt till att få samma funktion som den tidigare. TDV säkerställer även att den nya komponenten fungerar tillsammans med all funktionsprogrammering.



Digitala in och utgångar
I varje ”grundpaket” ingår 8 DI och 8 DO som kan användas fritt användas i programmeringen. Gateway kan även utökas med fler in- och utgångsmoduler.


Anteckingsfunktion
Det låter för enkelt, men en väl fungerande anteckningsfunktion till komponenter med möjlighet att flagga det som viktig och behöver åtgärdas gör en stor skillnad för arbetsflödet. Alla anteckningar kan sammanställas och spåras i en åtgärdslista. Det tar bort missförstånd, behovet av post-it-lappar och intermedelanden med kryptiska anteckingar. Alla anteckningar länkas givetvis till respektive komponent för att ytterligare minimera risken för missförstånd.




Produkter som omnämns: